Centrální rekuperace Xflat 200
Kód: XF1-020-ECS0HRXAE-0A0Montážní tým zajistíme instalaci
2 prodejny v Praze Praha 3 / Praha 8
Ověřený obchod hodnocení 90%
Český výrobce vlastní produkty
Prodej na splátky
Detailní popis produktu
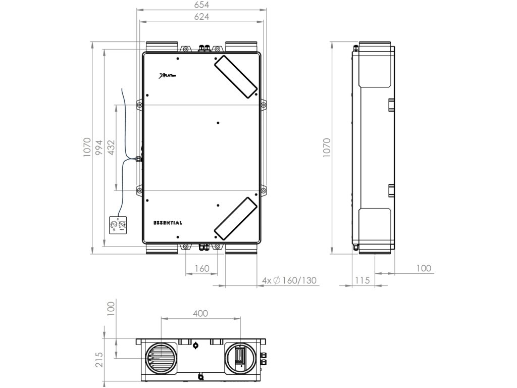
Rekuperační jednotka XFLAT 200
bez předehřevu, teplotní rekuperátor, levo-pravá, regulace ESSENTIAL
Rekuperační jednotka Xflat 200 představuje vyšší výkonnostní třídu řady Xflat. Nabízí nominální průtok až 200 m³/h (s možností přepnutí na 150 m³/h), vysokou účinnost zpětného získávání tepla až 88 %, nízkou spotřebu energie a mimořádně flexibilní instalaci díky systému MultiFlex.
Rekuperace je vyrobena v České republice a je určena pro moderní bytové projekty, větší byty i rodinné domy, kde je požadován vyšší výkon, ale zároveň kompaktní rozměry (výška pouze 210 mm, hmotnost cca 16 kg).
Jak vybrat správnou variantu Xflat 200?
Rekuperace Xflat 200 se konfiguruje podle několika parametrů. Níže je jejich přehled včetně vysvětlení, aby byl výběr jednoduchý a srozumitelný.
Tepelný (HRV) nebo entalpický (ERV) rekuperátor?
Tepelný výměník (HRV)
- Zajišťuje zpětné získávání tepla
- Teplotní účinnost až cca 88–89 %
- Vhodný pro standardní novostavby a projekty bez zvýšených nároků na vlhkost
Entalpický výměník (ERV)
- Přenáší teplo i část vlhkosti zpět do interiéru
- Teplotní účinnost cca 78–80 %
- Vlhkostní účinnost cca 40–43 %
- Omezuje vysušování vzduchu v zimě
- Doporučen při provozu s klimatizací

Univerzální připojení
Rekuperační jednotka Xflat 200 využívá systém MultiFlex:
- Možnost přepínání mezi levým a pravým provedením přímo na jednotce
- Otočné rohy o 90° pro snadné napojení potrubí
- Hrdla Ø160 mm (vnější) / Ø130 mm (vnitřní)
To výrazně zjednodušuje instalaci a eliminuje potřebu objednávat jinou variantu při změně projektu.

Regulace – Essential nebo Comfort

Essential
Základní regulace:
- Nastavení průtoku
- Indikace zaneseného filtru
- Aktivace freecoolingu (4 nebo 8 hodin)
Vhodné pro projekty, kde není vyžadováno pokročilé řízení.
Comfort

Pokročilá regulace:
- LED indikace průtoku
- BOOST režim (intenzivní větrání)
- Automatický / manuální mód
- Aktivace bypassu / freecoolingu
- Možnost připojení Wi-Fi modulu
- Modbus RTU ve standardu
Vhodné pro moderní domy s inteligentním řízením.
Bypass – mechanický nebo elektronický
Elektronický bypass
- Vzduch stále prochází skrz výměník
- Snížený rekuperační efekt
Mechanický automatický bypass (Comfort+)
- Spouští se na základě teplotních čidel
- Umožňuje letní freecooling
- Jednoduché a spolehlivé řešení
- Samostatná vzduchová cesta mimo výměník
Výkon a technické parametry

Konstrukce a instalační výhody
- Tělo z expandovaného polypropylenu (EPP) – lehké, pevné, akusticky tlumící
- Odnímatelný designový plechový kryt
- Integrovaný rozdělovač až pro 6 flexibilních trubek Ø75 mm – úspora prostoru a nákladů
- Montáž na zeď (vertikálně i horizontálně) nebo pod strop

Filtrace vzduchu
- Standardně filtry M5 (ePM10 55 %)
- Volitelně F7 (ePM1 50 %)
Snadná výměna filtrů a indikace zanesení.
Možnosti rozšíření
- CO₂ čidlo
- RH čidlo
- Kombinované CO₂ + RH čidlo
- Radon senzor
- Wi-Fi modul
- Externí potrubní předehřívač / dohřívač
- Vodní ohřívač / chladič
Jednotka tak může být plně integrována do chytré domácnosti.
Pro koho je Xflat 200 ideální?
- větší byty (100–160 m²)
- rodinné domy
- moderní novostavby
- projekty s požadavkem na vyšší výkon
- instalace s omezeným prostorem
Shrnutí hlavních výhod
✓ Výkon až 200 m³/h
✓ Možnost HRV nebo ERV
✓ Možnost předehřevu
✓ MultiFlex – levé / pravé provedení
✓ Essential nebo Comfort regulace
✓ Mechanický nebo elektronický bypass
✓ Integrovaný rozdělovač Ø75 mm
✓ Energetická třída až A+
✓ Česká výroba

Hodnocení produktu
Buďte první, kdo napíše příspěvek k této položce.
Diskuze
Buďte první, kdo napíše příspěvek k této položce.